【发明专利】六工位闭口钢桶刷洗装置
文/张宝忠
【摘要】
本发明涉及废桶回收技术领域,尤其涉及一种六工位闭口桶刷洗装置,包括结构相同的依次连接的三组刷洗机构以及上料机构,每组刷洗机构包括两个工位;所述刷洗机构包括旋转支架、机架总成、钢桶定位卡紧机构、拨桶机构、升降机构、机架旋转电机以及铁桶旋转电机;所述拨桶机构主要由拨桶气缸、拨杆以及连杆构成,所述拨桶气缸固定在所述机架总成上,所述拨桶气缸的活塞杆与所述连杆的一端连接,所述连杆的另一端与设置在所述旋转支架下部的铰轴连接,所述铰轴与所述拨杆的一端连接。拨桶机构就会将钢桶拨入到升降机构上方的转轴轮组合和被动转轴轮组合之间,这样本装置一次性就能够加工两个钢桶,工序效率提高一倍,降低了工人的劳动强度。

【权利要求书】
1、一种六工位闭口桶刷洗装置,其特征在于:包括结构相同的依次连接的三组刷洗机构以及上料机构,每组刷洗机构包括两个工位;所述上料机构包括上料气缸、上料机架以及上料拨杆,所述上料拨杆一端铰接在所述上料机架上,上料拨杆的中部与所述上料气缸的活塞杆铰接,所述上料气缸铰接在所述上料机架上;
所述刷洗机构包括旋转支架、机架总成、钢桶定位卡紧机构、拨桶机构、升降机构、机架旋转电机以及铁桶旋转电机;
所述旋转支架的两端通过轴承座与所述机架总成上部连接,所述机架旋转电机的输出端固定有主动齿轮,所述旋转支架上通过键连接有从动齿轮,所述主动齿轮和从动齿轮啮合;
所述旋转支架上部中间位置设有转轴轮组合,所述转轴轮组合的两侧分别设有被动转轴轮组合,其中一个被动转轴轮组合的一侧设有辅助转轴组合,所述铁桶旋转电机固定在所述旋转支架的一侧,所述铁桶旋转电机的输出端通过链条与所述转轴轮组合和辅助转轴组合连接;
所述钢桶定位卡紧机构为两组,分别设置在所述转轴轮组合和被动转轴轮组合之间,所述卡紧机构由两个卡盘和两个卡紧气缸构成,所述卡盘桶过轴承安装在所述卡紧气缸的活塞杆上,所述卡紧气缸固定在所述旋转支架上,两个卡盘相对设置;
所述拨桶机构主要由拨桶气缸、拨杆以及连杆构成,所述拨桶气缸固定在所述机架总成上,所述拨桶气缸的活塞杆与所述连杆的一端连接,所述连杆的另一端与设置在所述旋转支架下部的铰轴连接,所述铰轴与所述拨杆的一端连接,所述拨杆位于所述转轴轮组合的右侧下方;
所述升降机构位于所述转轴轮组合的左侧下方,所述升降机构主要由升降气缸和托起底座构成,所述升降气缸固定在所述旋转机架的下部,所述托起底座下部与所述升降气缸的活塞杆连接。
2、根据权利要求1所述的六工位闭口桶刷洗装置,其特征在于:所述转轴轮组合和被动转轴轮组合上分别设有防滑层。
3、 根据权利要求2所述的六工位闭口桶刷洗装置,其特征在于:所述转轴轮组合和被动转轴轮组合之间的距离小于钢桶的直径。
【说明书】
1、技术领域
本发明涉及废桶回收技术领域,尤其涉及一种六工位闭口桶刷洗装置。
2、背景技术
在石油、涂料及其他一些液体产品生产企业中,往往需要一种金属桶来盛装产品,而在产品使用后所剩的金属桶,都需回收洗刷后进行再次利用,这不但减少了能源浪费,而且减少了任意处置所带来的环境污染,但使用过的金属桶,其内外壁往往涂有一层油漆或沾有其他物料,过去都是由人工进行打磨冲洗,这不但清洗时间长,而且工作强度大,又不易打磨干净。现有技术中闭口桶刷洗装置都是采用人工上、下料的方式进行装桶,人工将闭口桶放置在清洗装置上,洗净后人工将机器停下,通过闭口桶自转和摇摆,使桶内的杂质脱离桶壁,再将几个闭口桶卸下,此种方式,工作效率低下。
3、发明内容
本发明的目的在于克服上述技术的不足,而提供一种六工位闭口桶刷洗装置,自动上、下料,提高工作效率。
本发明为实现上述目的,采用以下技术方案:
一种六工位闭口桶刷洗装置,其特征在于:包括结构相同的依次连接的三组刷洗机构以及上料机构,每组刷洗机构包括两个工位;所述上料机构包括上料气缸、上料机架以及上料拨杆,所述上料拨杆一端铰接在所述上料机架上,上料拨杆的中部与所述上料气缸的活塞杆铰接,所述上料气缸铰接在所述上料机架上;所述刷洗机构包括旋转支架、机架总成、钢桶定位卡紧机构、拨桶机构、升降机构、机架旋转电机以及铁桶旋转电机;所述旋转支架的两端通过轴承座与所述机架总成上部连接,所述机架旋转电机的输出端固定有主动齿轮,所述旋转支架上通过键连接有从动齿轮,所述主动齿轮和从动齿轮啮合;所述旋转支架上部中间位置设有转轴轮组合,所述转轴轮组合的两侧分别设有被动转轴轮组合,其中一个被动转轴轮组合的一侧设有辅助转轴组合,所述铁桶旋转电机固定在所述旋转支架的一侧,所述铁桶旋转电机的输出端通过链条与所述转轴轮组合和辅助转轴组合连接;所述钢桶定位卡紧机构为两组,分别设置在所述转轴轮组合和被动转轴轮组合之间,所述卡紧机构由两个卡盘和两个卡紧气缸构成,所述卡盘通过轴承安装在所述卡紧气缸的活塞杆上,所述卡紧气缸固定在所述旋转支架上,两个卡盘相对设置;所述拨桶机构主要由拨桶气缸、拨杆以及连杆构成,所述拨桶气缸固定在所述机架总成上,所述拨桶气缸的活塞杆与所述连杆的一端连接,所述连杆的另一端与设置在所述旋转支架下部的铰轴连接,所述铰轴与所述拨杆的一端连接,所述拨杆位于所述转轴轮组合的右侧下方;所述升降机构位于所述转轴轮组合的左侧下方,所述升降机构主要由升降气缸和托起底座构成,所述升降气缸固定在所述旋转机架的下部,所述托起底座下部与所述升降气缸的活塞杆连接。本发明中增加了拨桶机构和升降机构,初始时,只需工人将钢桶放入到转轴轮组合和被动转轴轮组合之间,拨桶机构就会将钢桶拨入到升降机构上方的转轴轮组合和被动转轴轮组合之间,这样本装置一次性就能够加工两个钢桶,工序效率提高一倍,且每次只需要工人将钢桶搬上即可,每加工一组,升降机构将钢桶提升一定高度,拨桶机构将钢桶拨入到升降机构中,升降机构中的钢桶会被拨桶机构中的钢桶推出,拨桶机构中的钢桶落入到升降机构中,这样就形成了一个单循环,最后由工人卸下即可,提高了工作效率,降低了工人的劳动强度。
优选地,所述转轴轮组合和被动转轴轮组合上分别设有防滑层。增加转轴轮组合的摩擦力,防止与转轴轮组合之间打滑。
优选地,所述转轴轮组合和被动转轴轮组合之间的距离小于钢桶的直径。保证钢桶能够搭在转轴轮组合和被动转轴轮组合之间。
本发明的有益效果是: 本发明中增加了拨桶机构和升降机构,初始时,只需工人将钢桶放入到转轴轮组合和被动转轴轮组合之间,拨桶机构就会将钢桶拨入到升降机构上方的转轴轮组合和被动转轴轮组合之间,这样本装置一次性就能够加工两个钢桶,工序效率提高一倍,且每次只需要工人将钢桶搬上即可,每加工一组,升降机构将钢桶提升一定高度,拨桶机构将钢桶拨入到升降机构中,升降机构中的钢桶会被拨桶机构中的钢桶推出,拨桶机构中的钢桶落入到升降机构中,这样就形成了一个单循环,最后由工人卸下即可,提高了工作效率,降低了工人的劳动强度。
4、附图说明
图1是本发明的结构示意图;

图2是本发明的俯视图。

5、具体实施方式
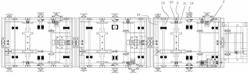
下面结合附图及较佳实施例详细说明本发明的具体实施方式。如图1至图2所示,一种六工位闭口桶刷洗装置,包括结构相同的依次连接的三组刷洗机构8以及上料机构9,每组刷洗机构包括两个工位;所述上料机构9包括上料气缸91、上料机架92以及上料拨杆93,所述上料拨杆一端铰接在所述上料机架上,上料拨杆的中部与所述上料气缸的活塞杆铰接,所述上料气缸铰接在所述上料机架上。上料机构起到准备作用,用于将钢桶推入到刷洗机构中。
所述刷洗机构包括旋转支架1、机架总成2、钢桶定位卡紧机构3、拨桶机构4、升降机构5、机架旋转电机6以及铁桶旋转电机7;所述旋转支架的两端通过轴承座与所述机架总成上部连接,所述机架旋转电机的输出端固定有主动齿轮61,所述旋转支架上通过键连接有从动齿轮11,所述主动齿轮和从动齿轮啮合。此结构跟现有技术的旋转机构原理相同,机架旋转电机能够带动旋转支架往复的摇摆,使钢桶中的油脂杂质在钢桶中晃动。
所述旋转支架上部中间位置设有转轴轮组合12,所述转轴轮组合的两侧分别设有被动转轴轮组合13,其中一个被动转轴轮组合的一侧设有辅助转轴组合14,所述铁桶旋转电机7固定在所述旋转支架的一侧,所述铁桶旋转电机的输出端通过链条与所述转轴轮组合和辅助转轴组合连接。旋转轴轮组合作为主动轮,而被动转轴轮组合作为从动轮,钢桶放置在两者之间能够以钢桶的轴心为轴旋转,而辅助转轴组合是作为中间传动的作用,使另一侧的转轮也同步转动。
在本发明中,所述钢桶定位卡紧机构3为两组,用于卡紧两个钢桶,分别设置在所述转轴轮组合和被动转轴轮组合之间,所述卡紧机构由两个卡盘31和两个卡紧气缸32构成,所述卡盘通过轴承安装在所述卡紧气缸的活塞杆上,所述卡紧气缸固定在所述旋转支架1上,两个卡盘相对设置。卡紧气缸的活塞杆带动卡盘移动,相对位置的两个卡盘夹紧钢桶的两端,放置钢桶轴向移动,同时钢桶还能够连通卡盘一同旋转。
作为本发明的改进点,所述拨桶机构4主要由拨桶气缸41、拨杆42以及连杆43构成,所述拨桶气缸固定在所述机架总成上,所述拨桶气缸的活塞杆与所述连杆的一端连接,所述连杆的另一端与设置在所述旋转支架下部的铰轴44连接,所述铰轴与所述拨杆的一端连接,所述拨杆位于所述转轴轮组合的右侧下方。利用杠杆的原理,拨桶气缸向下压动连杆,连杆上部带动铰轴转动,而铰轴又带动拨杆向上呈半弧状抬起,从而将钢桶拨入到下一个工位,从而替代了人工移动钢桶,提高了工作效率,降低了工人的劳动强度。
所述升降机构5位于所述转轴轮组合的左侧下方,所述升降机构5主要由升降气缸51和托起底座52构成,所述升降气缸固定在所述旋转机架的下部,所述托起底座下部与所述升降气缸的活塞杆连接。本发明中增加了拨桶机构和升降机构,初始时,只需工人将钢桶放入到转轴轮组合和被动转轴轮组合之间,拨桶机构就会将钢桶拨入到升降机构上方的转轴轮组合和被动转轴轮组合之间,这样本装置一次性就能够加工两个钢桶,工序效率提高一倍,且每次只需要工人将钢桶搬上即可,每加工一组,升降机构将钢桶提升一定高度,拨桶机构将钢桶拨入到升降机构中,升降机构中的钢桶会被拨桶机构中的钢桶推出,拨桶机构中的钢桶落入到升降机构中,这样就形成了一个单循环,最后由工人卸下即可,提高了工作效率,降低了工人的劳动强度。
所述转轴轮组合和被动转轴轮组合上分别设有防滑层。增加转轴轮组合的摩擦力,防止与转轴轮组合之间打滑。所述转轴轮组合和被动转轴轮组合之间的距离小于钢桶的直径。保证钢桶能够搭在转轴轮组合和被动转轴轮组合之间。
本发明中增加了拨桶机构和升降机构,初始时,只需工人将钢桶放入到转轴轮组合和被动转轴轮组合之间,拨桶机构就会将钢桶拨入到升降机构上方的转轴轮组合和被动转轴轮组合之间,这样本装置一次性就能够加工两个钢桶,工序效率提高一倍,且每次只需要工人将钢桶搬上即可,每加工一组,升降机构将钢桶提升一定高度,拨桶机构将钢桶拨入到升降机构中,升降机构中的钢桶会被拨桶机构中的钢桶推出,拨桶机构中的钢桶落入到升降机构中,这样就形成了一个单循环,最后由工人卸下即可,提高了工作效率,降低了工人的劳动强度。
以上所述仅是本发明的优选实施方式,应当指出,对于本技术领域的普通技术人员来说,在不脱离本发明原理的前提下,还可以做出若干改进和润饰,这些改进和润饰也应视为本发明的保护范围。